$459,000 Sale
Listed 3 hours ago
12610 15 Avenue
· 1
· 3
· 2
· 1411.05
Key Facts
Key facts for 12610 15 Avenue
Property Type
House, Bi-Level
Parking
Double Garage Attached 2 garage, Double Garage Attached 4 parking
MLS®
E4461194
Size
1411.05 sqft
Basement
Full,Finished, Fully Finished
Listed on
-
Lot size
-
Tax
-
Days on Website
-
Year Built
2009
Maintenance Fee
$384.03 /mo
Description
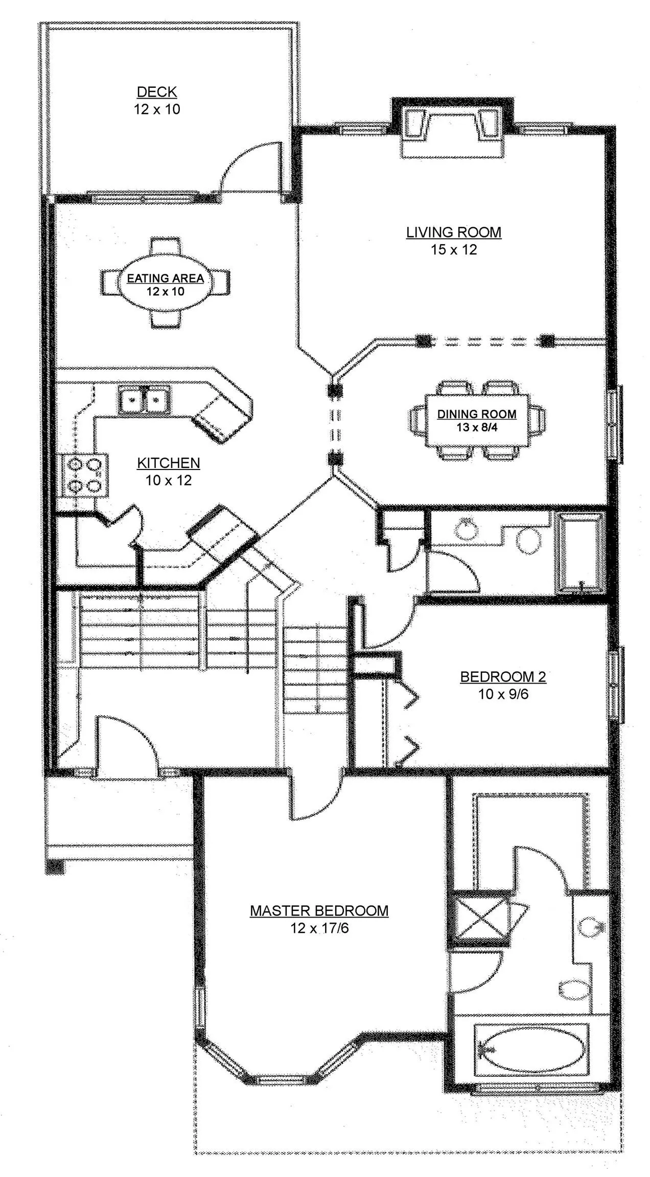
Tamaya Wynd Estates in West Rutherford is ideal for couples or families. Minutes from Anthony Henday Heritage Valley exit & numerous amenities in Heritage Valley Town Centre. Builder's size 1420 SQ FT upper and 865 SQ FT lower level. Main floor features 10' ceilings with an open concept kitchen with... nook, family room and area that can be used as a formal dining room or home office + one bedroom & full bath. Upstairs is the master suite with ensuite featuring a separate shower and soaker tub with a large walk-in closet. Basement has an open rec room, two additional bedrooms, full bath and laundry room. New efficient tankless water heater installed 2024 (Model NPE­A2). The unit backs onto a private acreage, offering privacy to enjoy the deck with natural gas barbecue hookup. Condo fees include exterior maintenance including snow removal, landscaping, irrigation & common area insurance. Electric fireplace in basement & gas fireplace on main floor. AC. Floorplan from builder's materials for layout reference.
Similar Properties (No results)
Courtesy of: Chelsea A Yu, Royal Lepage Summit Realty